Vuosaaren Kulttuurikortteli

Vuosaaren uusi urbaani sydän

Tiiliskivet on kilpailuehdotus, joka luo Vuosaaren keskustaan uuden, ilmeikkään identiteetin. Kulttuurikortteli yhdistää asumisen, kulttuurin ja liikunnan toiminnot selkeäksi ja monipuoliseksi kokonaisuudeksi, joka rikastuttaa alueen kaupunkirakennetta.

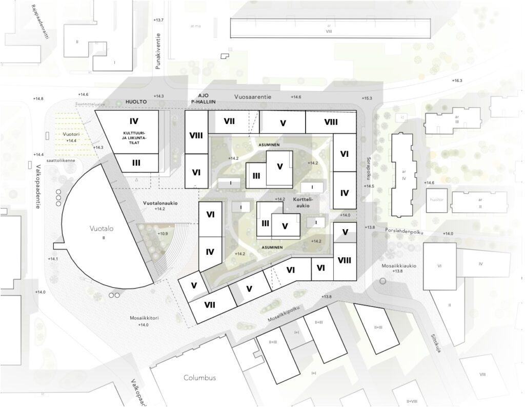
Uudet kulttuuri- ja liikuntatilat on sijoitettu yhteiseen rakennukseen Vuotalonaukion pohjoisreunalle. Yhdessä olemassa olevan Vuotalon kanssa ne muodostavat alueen uuden toiminnallisen ytimen. Rakennuksen saavutettavuus on optimoitu sijoittamalla sisäänkäynti ja yhteinen aula Vuotalon pääsisäänkäynnin välittömään läheisyyteen, mikä tekee uusien tilojen käytöstä luontevan osan nykyistä kokonaisuutta.

Vuotalonaukio muodostaa uuden keskeisen osan Vuosaaren keskustan aukioiden sarjaan. Ympäröivät rakennukset, aukiolle avautuvine tiloineen, luovat kehyksen tapahtuma-aukiolle. Vuotalonaukion alatasolle johtavat leveät ”kulttuuriportaat” tarjoavat paikan esityksille ja oleskelulle. Vuotalonaukion alapuoliset tilat aukeavat alatasolle, jonne muodostuu vehreä keidas säilytettävien puiden ansioista.

Korttelin urbaani aktiivisuus varmistetaan sijoittamalla liiketiloja katutasoon, erityisesti kulmiin sekä Mosaiikkitorin ja muiden aukioiden reunoille. Tilat ovat joustavasti jaettavissa tai yhdistettävissä, ja osa niistä on varustettu tukemaan monipuolista ravintola- ja kahvilatoimintaa.

Kalevalan tarinapiha

Asuinkortteli koostuu suojaavasta tiilimuuratusta ulkokehästä, jota on lohkottu visuaalisesti pienempiin osiin korkeusvaihteluilla sekä muurauksen sävyvaihteluilla. Suojaavan muurin sisäpuolelta paljastuu vehreä ja värikäs sisäpiha mataline pistetaloineen.

Piha jäsentyy luontevasti julkisesta yksityiseen. Keskellä kulkeva puolijulkinen raitti jakaa pihan osiin, kun taas puoliyksityiset oleskelualueet rajautuvat raitista piharakennusten ja istutusten avulla. Asuntokohtaiset yksityispihat on erotettu muusta piha-alueesta kevyesti pergoloin ja istutuksin, mikä takaa asukkaille oman rauhallisen tilan.

Korttelin pihateemana toimii Kalevalan kertomukset, joka yhdistää pihat yhdeksi kaikkien pihatilojen läpi kulkevaksi tarinaksi. Tarinat näkyvät pihalla toiminnoissa ja kasvillisuudessa, oleskelussa ja leikissä sekä taiteessa ja rakennuksissa.

Maantasokerroksen liiketilat, yhteisölliset saunatilat ja leikkialueet kytkeytyvät saumattomasti ympäröiviin kulttuuripalveluihin. Tämä toiminnallinen kokonaisuus luo elävää ja joustavaa kaupunkitilaa, joka palvelee asukkaita pitkälle tulevaisuuteen. Korttelin pysäköinti on ratkaistu huomaamattomasti pihakannen alle sijoitetulla kaksitasoisella autohallilla.

Tiiliskivet


Vuosaaren kulttuurikorttelin kehittämisen kilpailuehdotus 2024

Sijainti: Vuosaari, Helsinki

Laajuus: 33 000 kem2, josta 28 000 kem2 asumista ja 5 000 kem2 liiketilaa

Mosaiikkikorttelin kilpailu

1. sija Vuosaari, Helsinki / 2021

Mosaiikkikorttelin palvelurakennus

1. sija Vuosaari, Helsinki / 2021

Meri-Rastilan monitoimitalo

Lunastus Vuosaari, Helsinki / 2024